Проект дома 4
Одноэтажная летняя кухня с техническими помещениями из кирпича.
Дом выполнен в смешанном стиле - минимализм, барнхаус.
В фасаде преобладает текстура коричневого кирпича, в сочетании с белой декоративной штукатуркой и графитовой мягкой кровлей. Главный фасад дома украшает понорамное остекление.
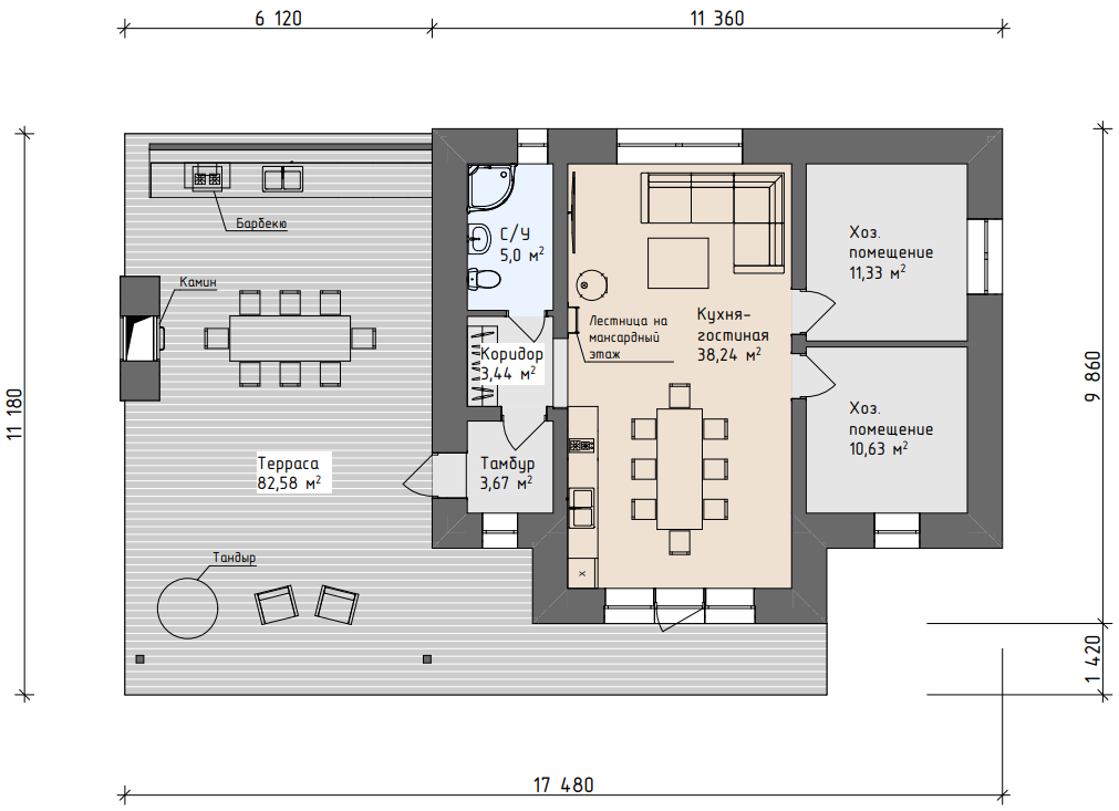
Помещения дома: тамбур, коридор, кухня, С/У, хозяйственные помещения.
Площадь помещений: 72,3 м2
Площадь дома с террасой: 155,1 м2.

