Проект дома 7
Двухэтажный кирпичный дом, с элементами восточного стиля
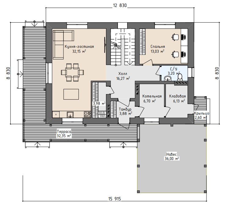
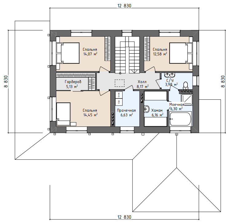
площадь 160м2
Планировочное решение: на первом этаже кухня-гостиная, кабинет,сан.узел. кладовая и котельная
на втором этаже 3 спальни,2 сан.узла, хамам, прачечная
отделка фасада: фасадная штукатурка с декором из деревянного планкена

