Проект дома 2
Одноэтажный с мансардой кирпичный дом. Отделка фасадов - облицовочный кирпич.
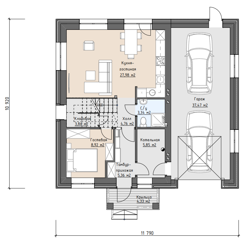
Помещения 1-го этажа: тамбур-прихожая, котельная, спальня, с/у, холл, кладовая, кухня-гостиная, гараж для 1 автомобиля.
Помещения мансардного этажа: три спальни, гардеробная, постирочная, с/у.
Площадь помещений: 149 м2
Площадь дома с крыльцом и террасой: 153 м2.

