Проект дома 3
Двухэтажный дом с баней из газоблока в стиле "модерн"
Отделка фасада - штукатурка с декоративными элементами.
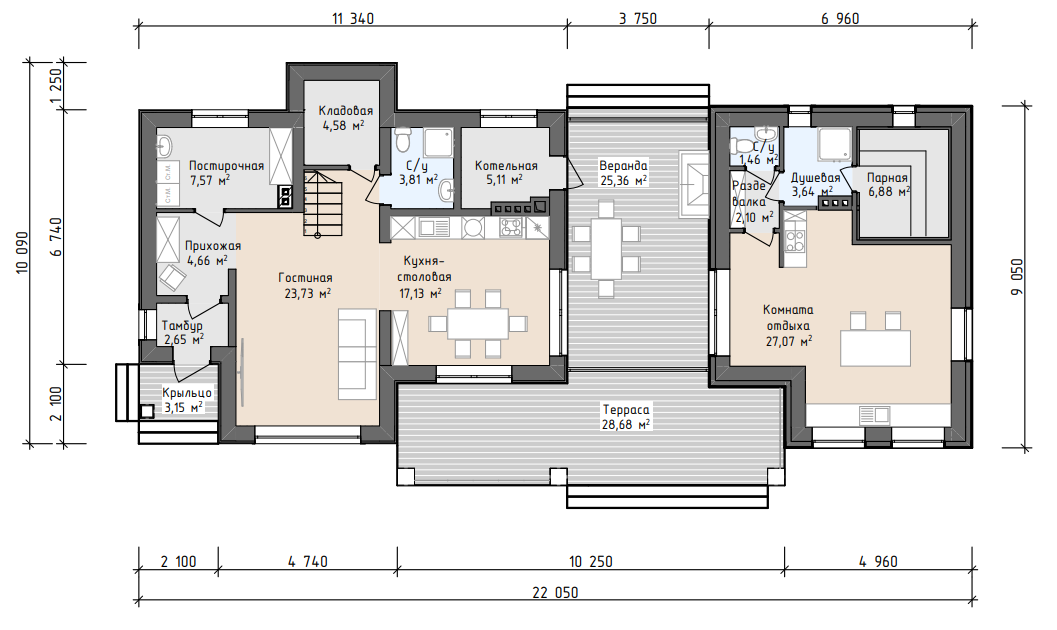
Помещения 1-го этажа дома: тамбур,холл, холл, прачечная, гостиная, кухня-столовая, кладовая, с/у, котельная, веранда.
Помещения бани: комната отдыха, раздевалка, с/у, душевая, парная
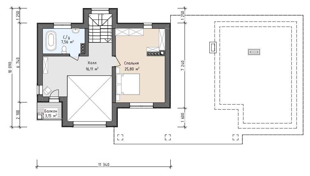
Помещения второго этажа: холл, спальня с гардеробом, с/у.
Площадь помещений дома и бани: 187 м2
Общая площадь дома с террасой, крыльцом, балконом: 221 м

