Проект дома 4
Одноэтажный дом из кирпича с мансардой. Выполнен в стиле американской классики.
На фасаде преобладает текстура штукатурки белого цвета в сочетании с графитовой
гибкой черепицей.
Помещения 1-го этажа: тамбур, холл, кухня-гостиная, котельная, два С/У, спальня, кладовая.
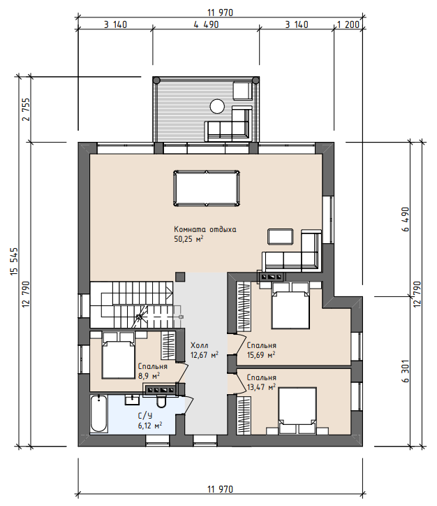
Помещения мансардного этажа: холл, три спальни, зона отдыха, с/у.
Площадь помещений: 234,2 м2.
Площадь дома с крыльцом и террасой: 259,99 м2.

