Проект дома 1
Одноэтажный дом из сибита.
Выполнен в стиле минимализм.
Цветовое решение фасадов – белая декоративная штукатурка, отделка навесными фасадами под натуральный камень темно-
коричневого цвета.
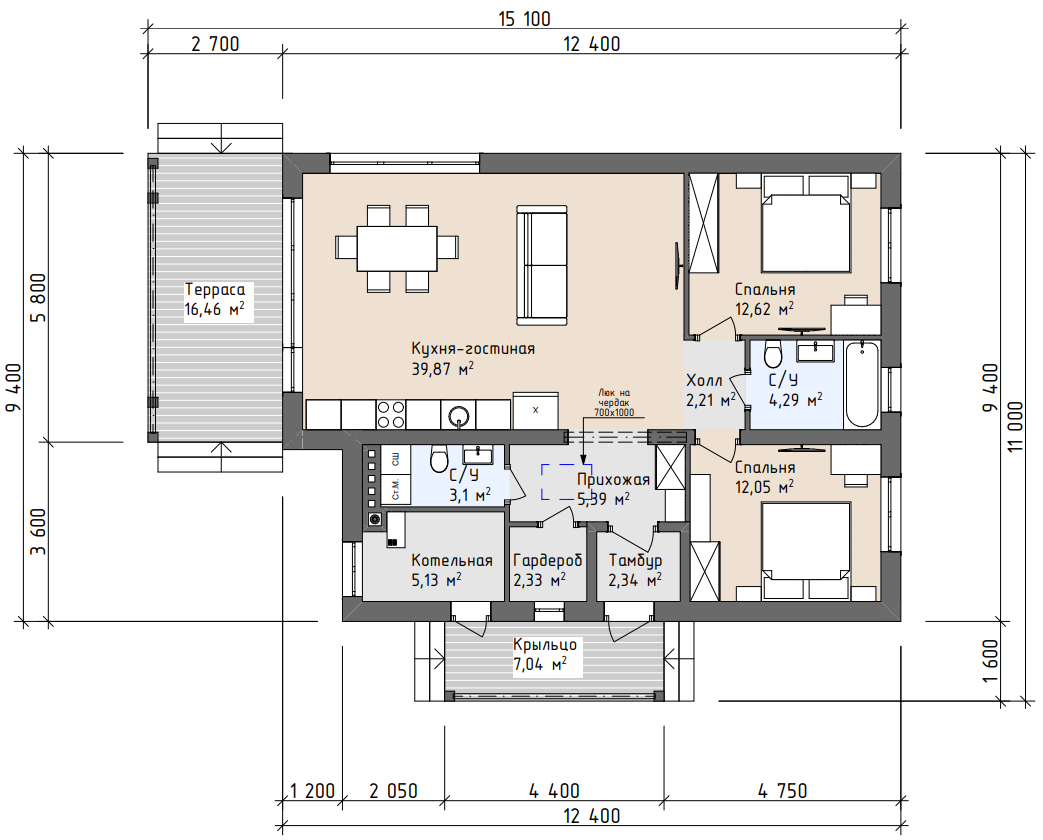
Помещения этажа: тамбур, прихожая, гардеробная, санузел с прачечной, коридор, две спальни, санузел, общая комната, котельная.
Из общей комнаты предусмотрен выход на террасу и участок.
Площадь помещений – 89,33 м².
Площадь дома с крыльцом и террасой – 112,83 м².

