Проект дома 2
Двухэтажный дом из кирпича.
Выполнен в сочетании стилей минимализм и конструктивизм.
В фасаде преобладает текстура белой и серой штукатурки.
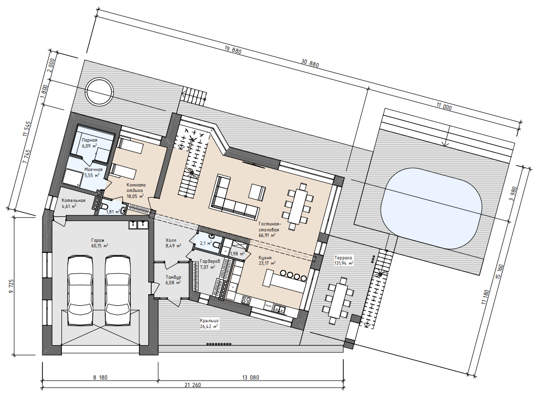
Помещения 1-го этажа: тамбур, прихожая, холл, гардеробная, гостиная-столовая, кухня, кладовая при кухне,
котельная, моечная, баня, комната отдыха, с/у при бане, и гостевой с/у, гараж на две машины.
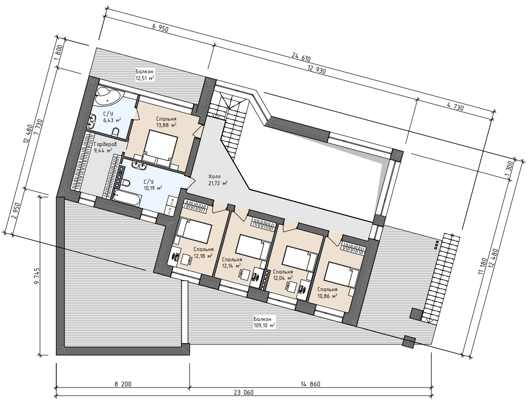
Помещения 2-го этажа: холл, пять спален, два с/у, гардеробная.
Площадь помещений – 321,0 м².
Площадь дома с крыльцом и террасой – 601,0 м².

