Проект дома 3
Двухэтажный дом из кирпича с подвалом и мансардой. Дом выполнен в сочетании стилей минимализм.
В отделке фасадов преобладает красный кирпич, в сочетании с темным деревом. Главный фасад дома украшает понорамное остекление.
Помещения 1-го этажа: тамбур, прихожая, холл, гардеробная, гостиная, кухня-столовая, теплая терраса с зоной
барбекю, сан.узел, гостевая спальня, гараж на 3 машины с зоной хранения, две кладовые и котельная.
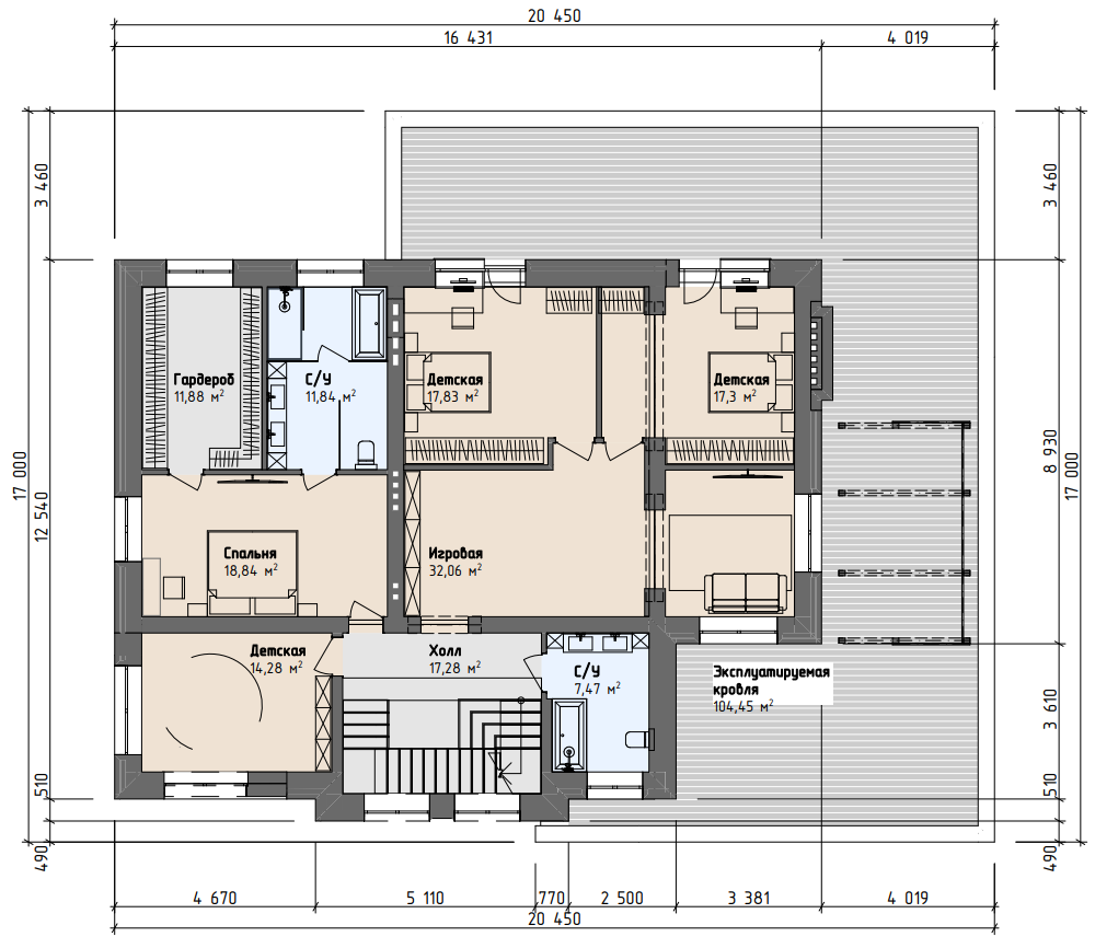
Помещения 2-го этажа: холл, мастер-спальня с гардеробной и ванной комнатой, три детских комнаты, игровая и
С/У. Предусмотрен выход на эксплуатируемую кровлю.
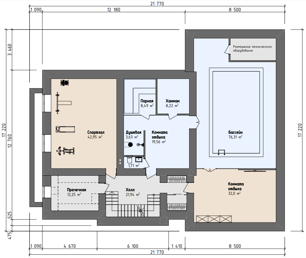
Помещения расположенные в подвале: прачечная, кладовая, спортзал, сауна, хамам, моечная, санузел, две зоны
отдыха и бассейн.
На мансардном этаже предусмотрено расположение зимнего сада.
Площадь дома: 703,61 м2.
Площадь дома с крыльцом и террасой: 724,06 м2.

