Проект дома 6
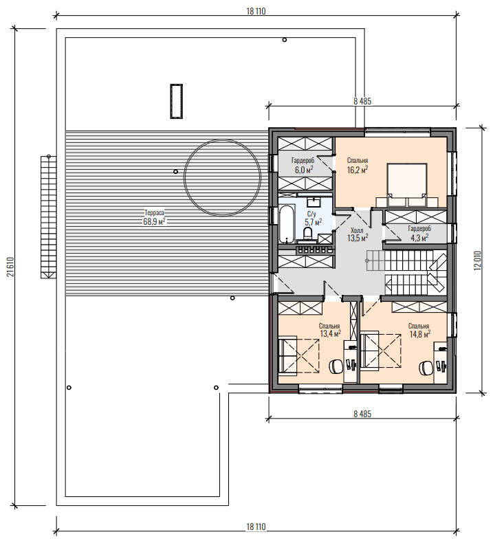
Кирпичный дом, 2 этажа, площадь 285,3 м2, 4 спальни, кухня-гостиная, гараж на 2 машинв, банный комплекс, эксплуатируемая кровля, навес для автомобиля.
У клиента небольшой участок, поэтому задача стояла разместить все максимально компактно. Было принято решение объеденить все постройки а один комплекс, задача выполнена - клиент доволен.

