Двухэтажный индивидуальный жилой дом из кирпича в стиле минимализм
отделка фасада: фасадная штукатурка, планкен
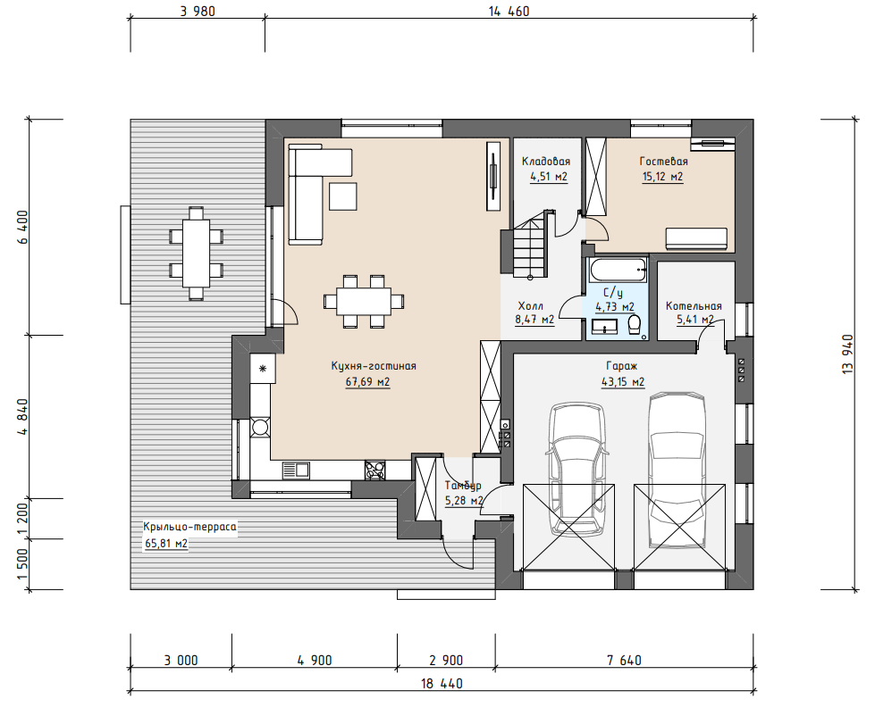
Общая площадь с террасой и крыльцом 368,85м2
Площадь помещений дома 258,75м2
Создаём концепцию будущего объекта: прорабатываем планировку, стилистику, объёмно-пространственные решения и первичную визуализацию — чтобы вы чётко понимали, как будет выглядеть ваш дом или участок.
Подготавливаем полный комплект детализированной документации для строительства: чертежи, спецификации, узлы и пояснительные записки — всё, что нужно подрядчику для точной реализации проекта.
Разрабатываем гармоничное благоустройство территории: зоны отдыха, дорожки, озеленение, освещение и малые архитектурные формы — с учётом рельефа, климата и ваших предпочтений.
+
Реализация под ключ
Сопровождаем проект от идеи до сдачи объекта: координируем подрядчиков, контролируем качество и сроки, вносим корректировки — чтобы результат полностью соответствовал вашим ожиданиям.
Этот сайт использует куки-файлы и другие технологии, чтобы помочь вам в навигации, а также предоставить лучший пользовательский опыт. Вы всегда можете отключить файлы cookie в настройках Вашего браузера. Так же мы используем сервис Яндекс.Метрика для анализа трафика.
Подробнее в
политике конфиденциальности Яндекса.