Проект дома 9
Двухэтажный дом из кирпича. Выполнен в стиле минимализм.
Фасадное решение сочетает штукатурку и декоративные элементы из дерева.
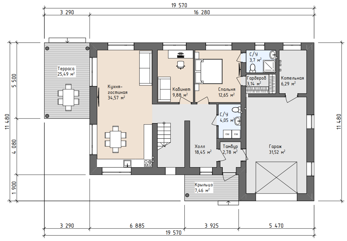
Помещения 1 этажа: тамбур, холл, кухня-гостиная, котельная, два С/У, кабинет, гардеробная, гараж.
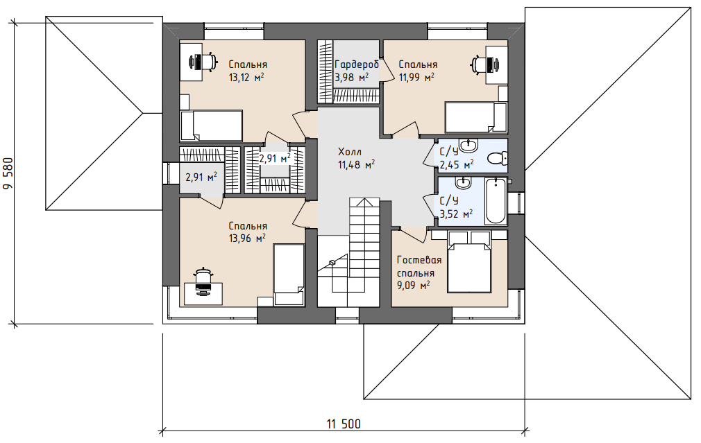
Помещения 2 этажа: холл, 2 с/у, 4 спальни, 3 гардеробных.
Площадь помещений: 202,4 м2
Площадь дома с крыльцом и террасой 235,39 м2.

