Проект дома 8
Двухэтажный индивидуальной жилой дом выполнен в монолитном каркасе с заполнением сибитом.
За счет компактной планировки, дом прекрасно вписался на небольшой участок на крутом склоне с видом на море. Изюминкой проекта является 2х уровневый холл, с видом на море, которое вы видите, как только входите в дом.
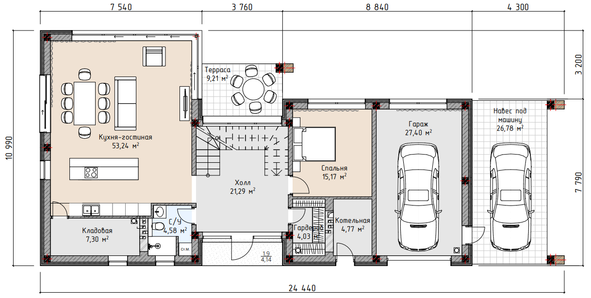
Помещения 1 - ого этажа: холл с лестницей, сан.тех.узел, гардероб, котельная, кладовая, кухня-гостиная, спальня, гараж.
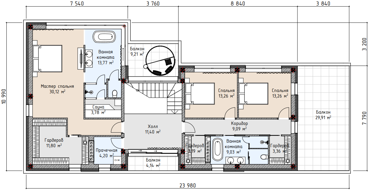
Помещения 2 - ого этажа: холл, прачечная, сауна, 2 ванные комнаты, 3 спальные комнаты, 3 гардеробные комнаты.
Дом выполнен в стиле минимализм. В фасаде преобладает отделка деревом и натуральным камнем.
Площадь помещений: 270,51 м2.
Площадь дома с крыльцом и террасой: 355,69 м2.

