Проект дома 3
Двух этажный дом из кирпича в стиле «прерий».
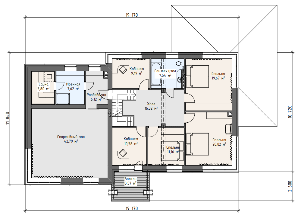
Дом проектировался под семью из 6 человек, не только для проживания, но и как место для работы хозяев дома, для этого в доме 2 кабинета, спортивно оздоровительная зона с сауной и спорт залом, а так же на первом этаже разделены кухня и гостиная, т к в гостиной будет отдельная отмосфера музыкального зала и релакса перед камином.
В отделке стен использованы : фасадная штукатурка, планкен, и клинкерный кирпич.
Площадь помещений дома 315 м2.
Общая площадь с крыльцом, балконом и террасой 364 м2.

