Проект дома 2
Двухэтажный дом из кирпича.
Выполнен в сочетании стилей барнхаус и минимализм.
Фасадное решение сочетает штукатурку и облицовочный кирпич со вставками из планкена.
Помещения 1-го этажа: тамбур, холл, кухня-гостиная, котельная, с/у, гардероб, кабинет.
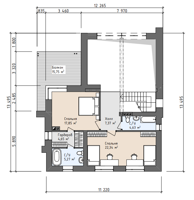
Помещения 2-го этажа: холл, два с/у, две спальни, гардероб.
Площадь помещений – 155,61 м².
Площадь дома с крыльцом и террасой – 191,47 м².

