Проект дома 4
Одноэтажный каркасный жилой дом для временного проживания, или дом-дача.
Выполнен в стиле "барнхаус", с отделкой фасадов деревянным планкеном.
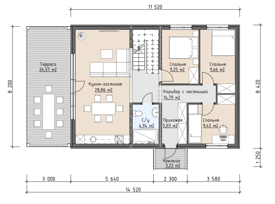
Помещения первого этажа: прихожая, коридор с лестницей, совмещенный с/у, три спальни, кухня-гостиная.
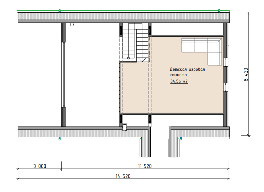
На антресольном этаже находится детская игровая зона. Предусмотрена возможность организации вместо нее двух комнат.
Площадь помещений – 117 м².
Общая площадь дома с крыльцом и террасой – 144 м².

