Проект дома 5
Двухэтажный дом из газоблоков.
Дом выполнен в сочетании стилей барнхаус, минимализм, эклектика.
Отделка фасадов – штукатурка, деревянная рейка.
Помещения первого этажа: прихожая, гардеробная, котельная, сан.узел, кладовая, гостиная, кухня-столовая,
кабинет, гараж на две машины.
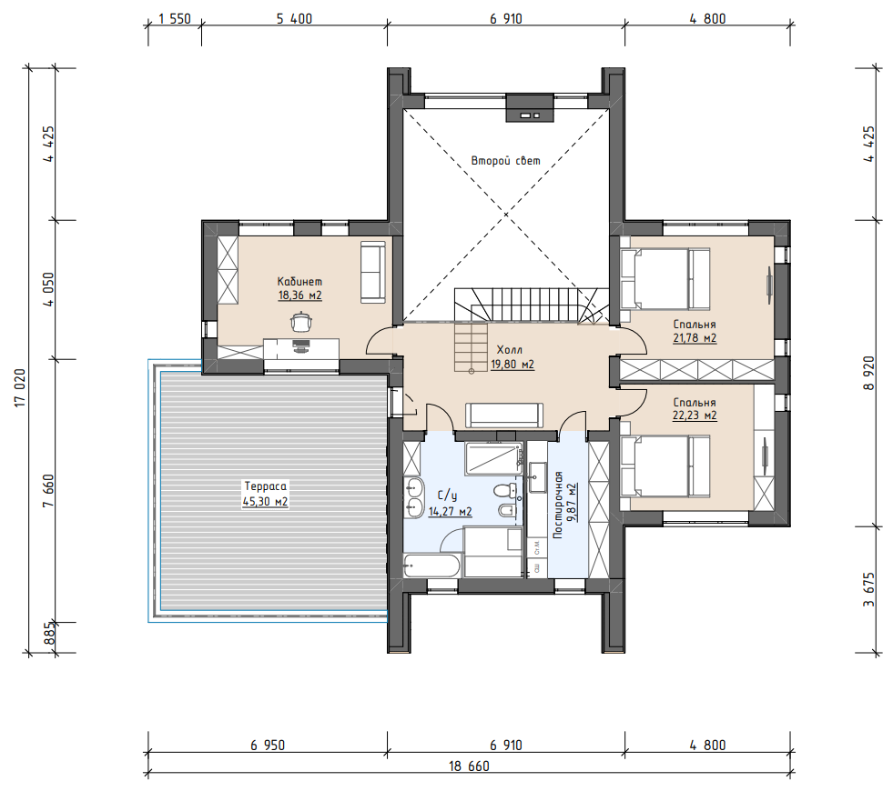
Помещения второго этажа: холл, кабинет, две спальни, комната для стирки и сушки, сан.узел.
Площадь помещений дома – 281 м².
Общая площадь дома с крыльцом, террасой, эксплуатируемой кровлей – 360 м².

