Проект дома 1
Одноэтажный дом из кирпича. Выполнен в современном стиле.
На фасаде преобладает текстура серо-коричневого кирпича в сочетании с графитовой
металлочерепицей. Фасад дома на дворовую часть участка украшает деревянная пергола.
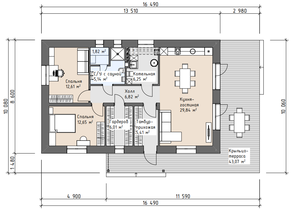
Помещения дома: тамбур-прихожая, холл, кухня-гостиная, котельная, С/У с сауной, 2 спальни, гардероб.
Площадь помещений: 86,55 м2.
Площадь дома с крыльцом-террасой: 129,62 м2.

