Проект дома 2
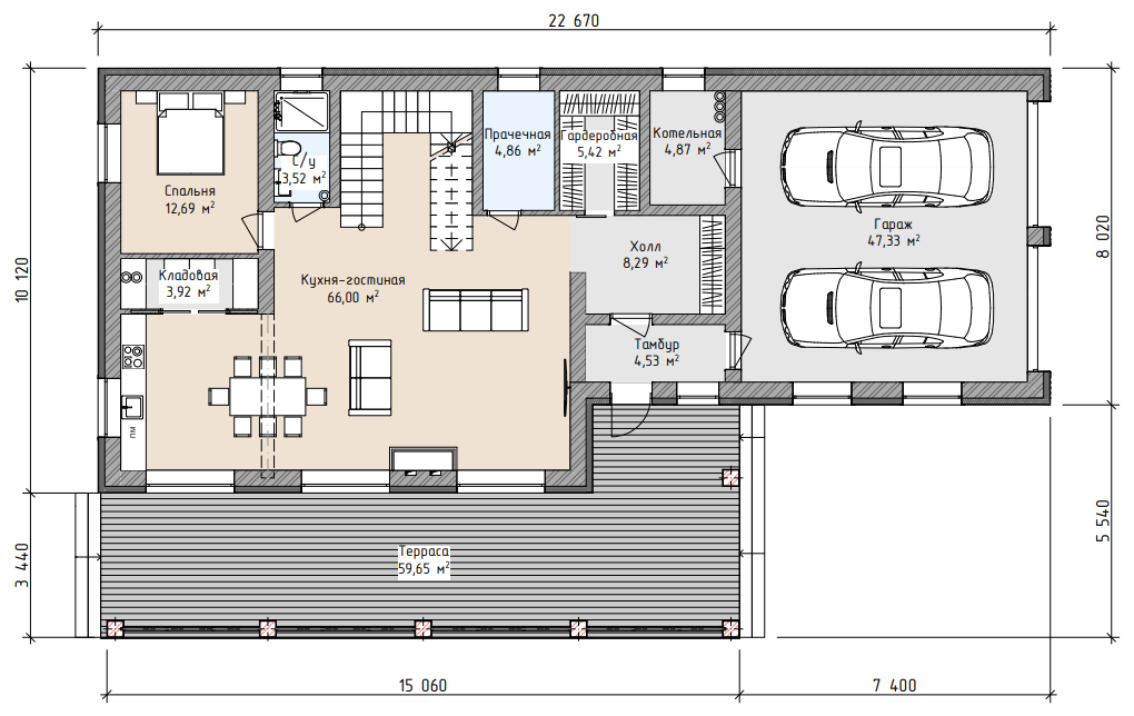
Комбинированный 2х этажный индивидуальный жилой дом с гаражом на 2 машины из кирпича и профилированного бруса.
Отделка фасада: 1 этаж фасадная штукатурка, 2 этаж пропитка под натуральное дерево.
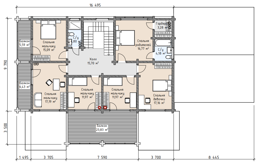
Площадь дома с террасой и балконами 376,01 м2
Общая площадь помещений 280,85 м2
Запрос: запроектировать дом по принципам Васту на геометрически сложном участке, для большой многодетной семьи. Было учтено не только правильное размещение дома на участке относительно сторон света, но и размещение комнат в доме согласно принципам Васту. Дом получился гармоничный, как с наружи, так и внутри.

