Проект дома 3
Одноэтажный индивидуальный жилой дом из кирпича в стиле шале
Отделка фасада: облицовочный кирпич 2х оттенков, коричневый и песочный
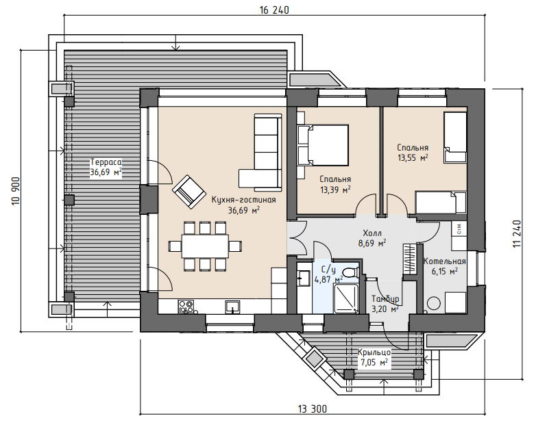
Площадь дома с террасой и крыльцом 133,58 м2
Площадь помещений дома 89,84 м2
Запросом клиента было сделать дом для отдыха за городом, с большой кухней гостиной и окнами на сосновый бор. Для этого запроса прекрасно подошёл стиль шале, и на сосновый бор получилось разместить не только кухню-гостиную но и просторную террасу. Заказчик остался доволен.

